+49 30 983 771 98 info@baat-ug.de

Dreilinden 

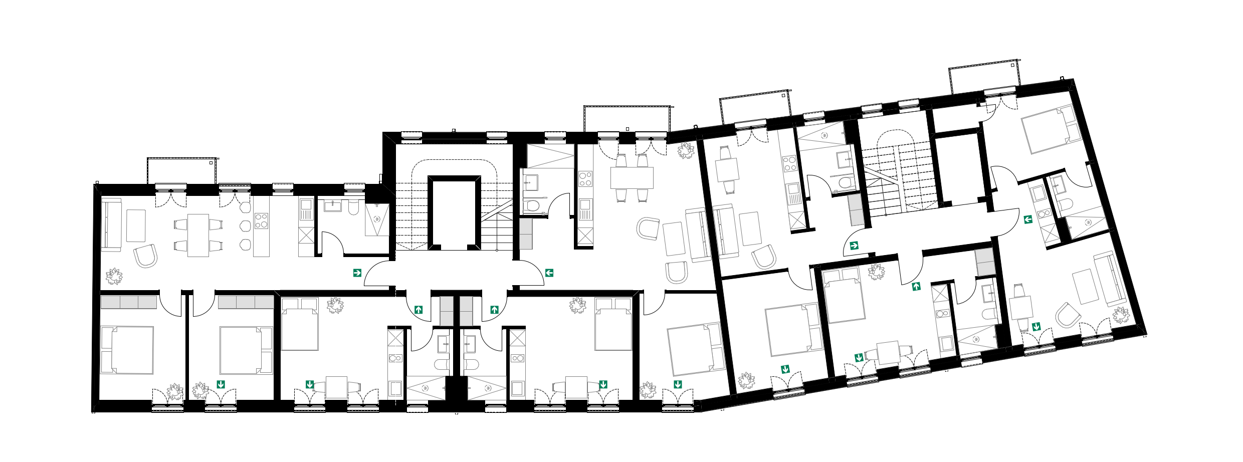
Boardinghouse mit 36 Wohneinheiten im Herzen Leipzigs. Das Projekt füllt eine Brache (Lückenschluss) zwischen zwei denkmalgeschützten Wohnhäusern aus. Geplant sind fünf Obergeschosse mit einer BGF von ca. 2.000m². 

Projekt Infos

Auftraggeber: PROPIA Real Estate Management GmbH

Auftrag: Generalplanung

Projektzeitraum: 2024-2026

Projekt: Boardinghouse, KfW40 NH

Kategorie: gewerbliches Wohnen

Lage: Leipzig

Baukosten: vertraulich

Projektentwicklung

Wir bringen Ihre Bestandsimmobilien und Grundstücke auf ein neues Level.

Schlüsselfertiges Bauen

Architekt, Statik, Maurer, Dachdecker und Elektriker koordinieren? Mit uns erhalten Sie den Rundumservice.

Tragwerksplanung

Eine perfekt abgestimmte Tragwerksplanung spart Baukosten und schafft gemeinsam mit der Architektur ein einmaliges Bauwerk.

Lassen Sie uns gemeinsam

bauen!

Sie haben Interesse an unseren Leistungen?